11973 Mayfield Ave 102, Los Angeles, CA 90049
Toggle Navigation
Images
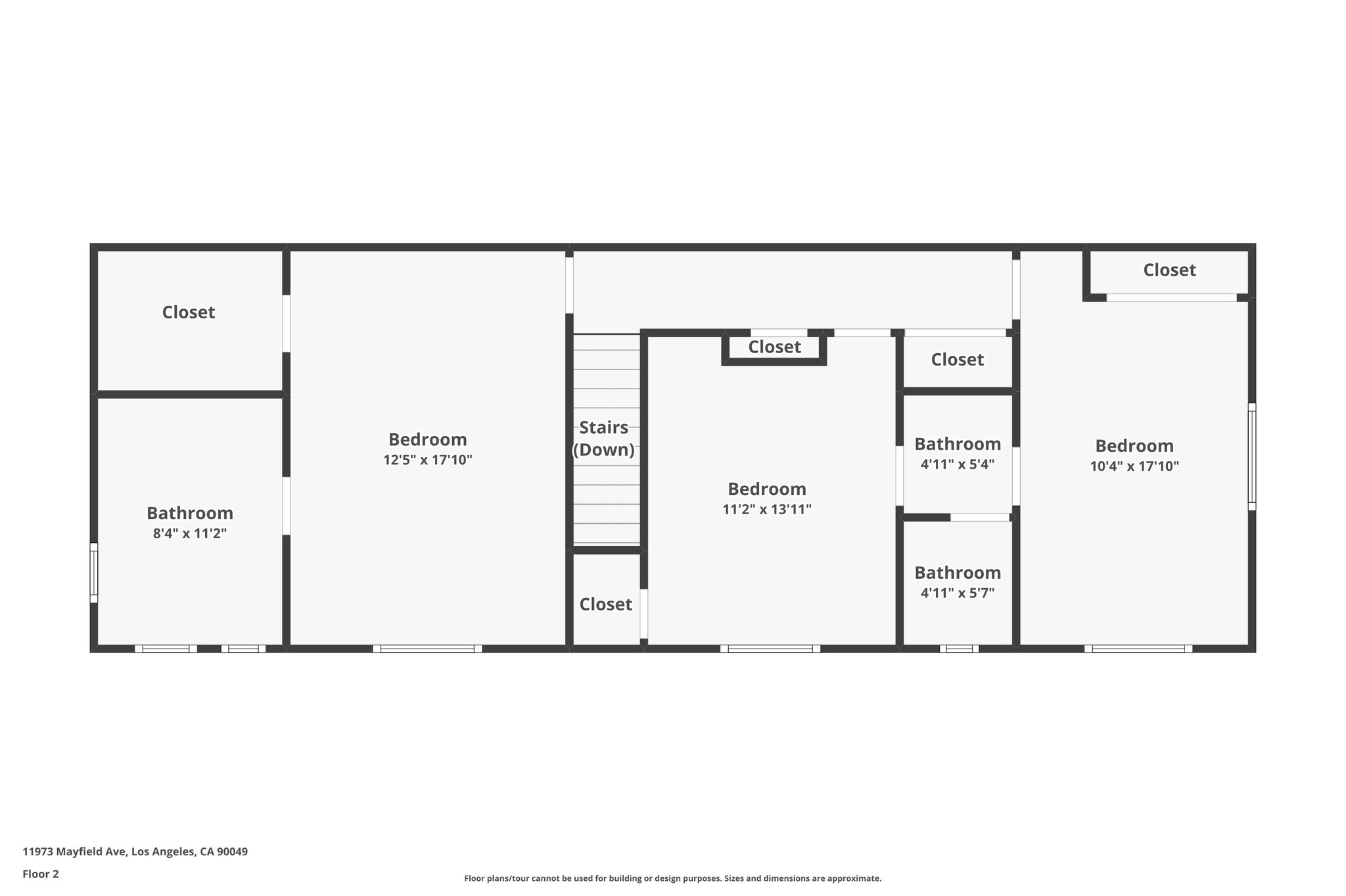
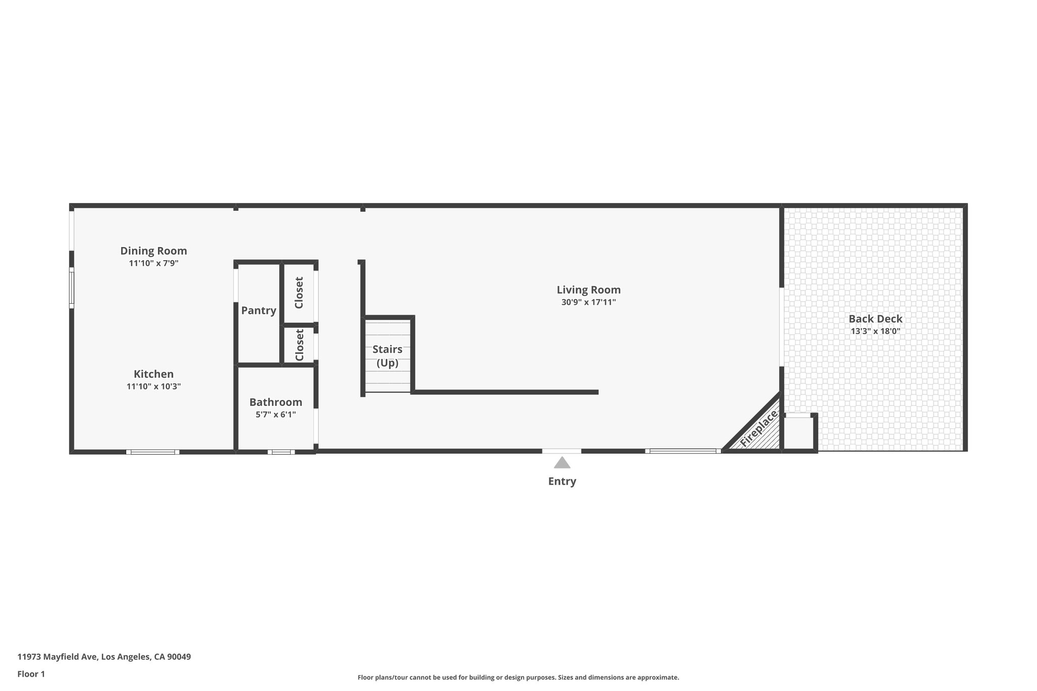
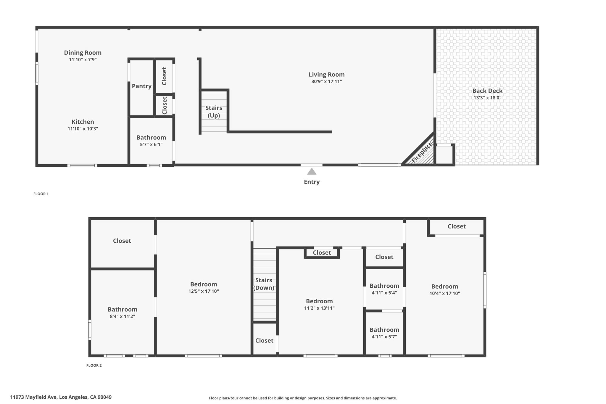
Floor Plans
3D Tour
Map
11973 Mayfield Ave 102
Los Angeles, CA 90049
Scroll to Content
Images
Slideshow
Photo Grid
Hide
Previous
Next
Show more
Floor Plans
Slideshow
Photo Grid
Hide
Previous
Next
3D Tour